Vivienda unifamiliar en Purias. Lorca. Murcia.
Promoción de vivienda unifamiliar en curso y a la venta
“Volúmenes, materiales, fusión interior-exterior, espacios que fluyen, se relacionan, que explosionan hacia las vistas…
”NC Arquitectura proyecta una vivienda unifamiliar sita en la zona residencial de Purias, en Lorca, proyectada en una parcela de más de 5.000, 00 m2. Es de linea contemporánea y consta aproximadamente de 300 m2 construidos de vivienda y 200 m2 de sotano.
Este proyecto responde al deseo de que la casa disfrutase al máximo de la luz natural pero que, al mismo tiempo, preserve la privacidad de sus propietarios. Para conseguirlo, se diseñó una vivienda que mantiene una máxima conexión con el jardín y disfruta de espléndidas vistas sobre el campo.
Todos sus espacios exteriores se articulan en torno a ella, de modo que ésta y su entorno se constituyen en un continuo, haciendo que la vida en ella resulte muy confortable.
INTERIOR


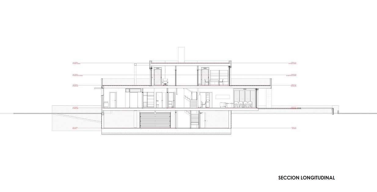
PLANOS
- PLANTA BAJA
- PLANTA ALTA
- PLANTA SOTANO
- PLANTA CUBIERTA
- ALZADO PRINCIPAL
- ALZADO LEVANTE
- ALZADO PONIENTE
- ALZADO TRASERO
- ALZADO TRANSVERSAL 01
- ALZADO TRANSVERSAL 02
- ALZADO LONGITUDINAL


































