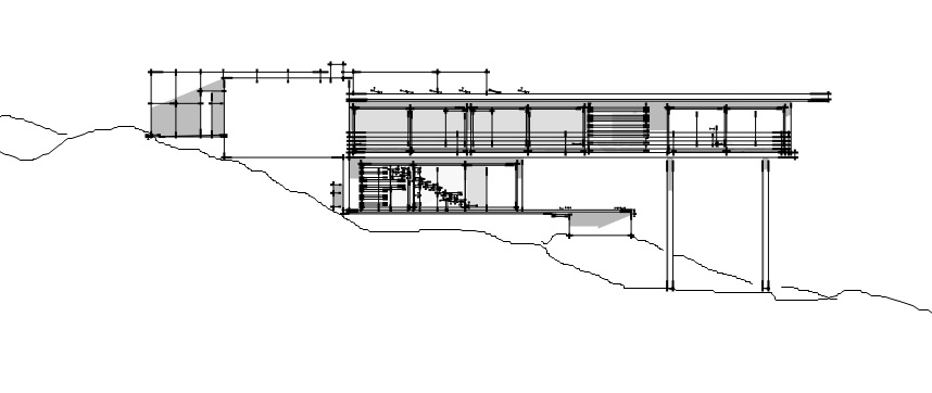
Vivienda unifamiliar en un acantilado

NC Arquitectura presenta este modelo conceptual de vivienda en un acantilado provista de medidas de eficiencia energética y sostenibilidad.

Hormigón visto hecho in situ y grandes ventanales.

250 m2 construidos y zonas de terrazas con vistas al lago.

 

18

03

05

19

06

07

08

10

11

20

14

13

20

24

22

21

17

16

12

15

Alzados y planta de cubiertas

house13_1 house13_2 house13_3

house13_p

También te podría gustar...