Edificio de Viviendas. C. Donantes de Sangre. Lorca. Murcia
Edificio de viviendas, oficinas y locales comerciales en zona centrica de la ciudad de Lorca.
Arquitectura actual, fachada ladrillo visto, aluminio y detalles de hormigon visto.
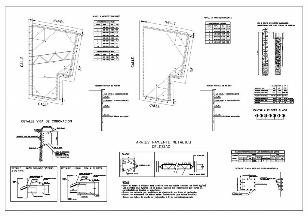
Aparcamiento bajo rasante ejecutado con cimentación especial, pilotaje y pantallas atirantadas más pilotes de hormigón armado.
Micropilotaje visto con cubrición de malla metalica en bajo rasante.








